Casa indipendente in vendita

Lugo, Via lato di mezzo
€ 256.000
Prezzo aggiornato
6 locali 6 locali
363 Mq 363 Mq
2 bagni 2 bagni

Casa indipendente in vendita

Lugo, Via lato di mezzo

Descrizione annuncio

LUGO: spaziosa casa indipendente di 353 mq, che offre una disposizione funzionale degli ambienti, ideale per chi cerca ampi spazi e comfort.

Un giardino di 800 mq circonda la casa, offrendo un'area verde per il relax e le attività all'aperto.

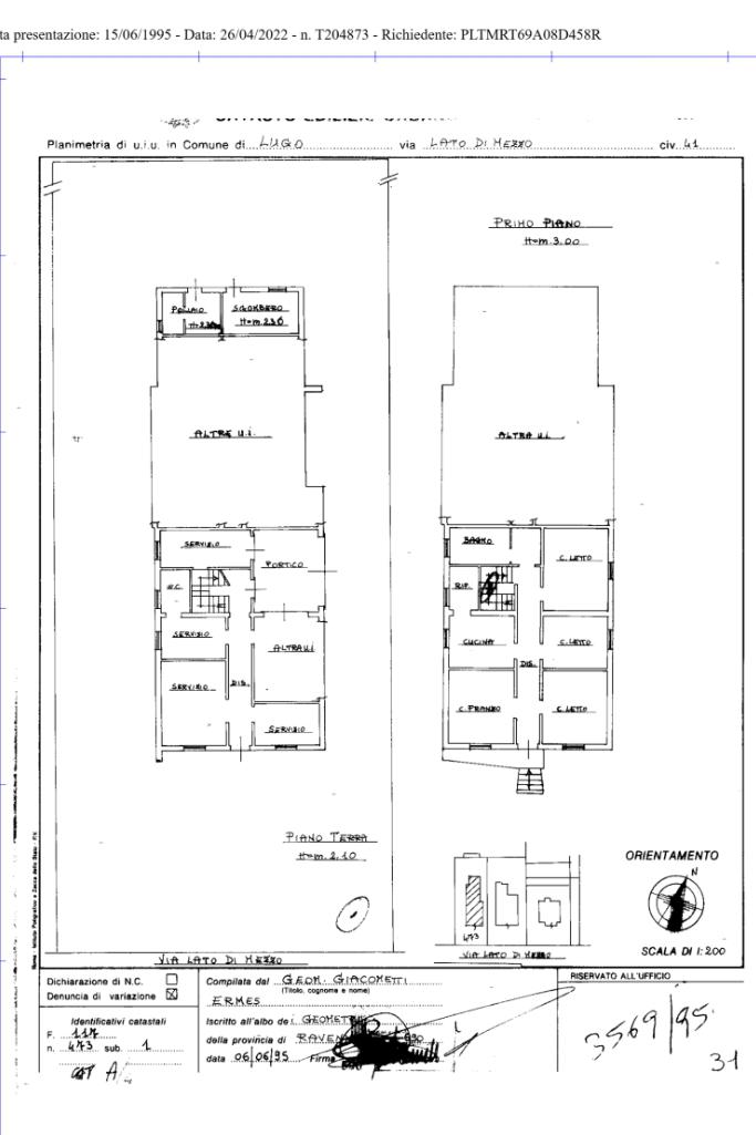
L'immobile, costruito nel 1960, si compone da 2 unità abitative autonome, entrambi distribuite al primo piano con relativi servizi al piano terra.

Prima unità composta da ingresso con scala esterna, disimpegno, soggiorno, tinello con cucinotto, 3 camere da letto e bagno. Al piano terra 3 vani cantina, ripostiglio, bagno e autorimessa.

Seconda unità composta da ingresso con scala interna, disimpegno, soggiorno con angolo cottura, 2 camere da letto e bagno. Al piano terra cantina, 2 ripostigli e autorimessa.

Questa soluzione abitativa rappresenta un'opportunità unica per chi desidera vivere in un contesto tranquillo e ben collegato.

Per maggiori informazioni puoi contattarci al 0545-287708 oppure mandarci una mail a raha4.

Mostra tutto

Nelle vicinanze

Trasporto pubblico Trasporto pubblico
Lugo
Lugo
570 m
Lugo Autostazione
Lugo Autostazione
340 m
Lugo Orsini Ricci
Lugo Orsini Ricci
570 m
Scuole Scuole
Istituto Tecnico Commerciale e per Geometri "Giuseppe Compagnoni"
470 m
Istituto Tecnico Industriale di Stato "Guglielmo Marconi"
490 m
Liceo scientifico Ricci Curbastro
500 m
Polo Tecnico Professionale di Lugo
510 m
Polo Tecnico Professionale E. Stoppa E G. Compagnoni
770 m
Farmacia Farmacia
Farmacia Rossi
1,0 Km
Farmacia della Rocca
1,2 Km
Farmacia
1,2 Km
Ospedali Ospedali
Ospedale Umberto I
1,0 Km
Supermercati Supermercati
Crai
710 m
Penny Market
1,5 Km
Ipercoop
1,5 Km
Crai - La fornace
1,9 Km
Lidl
2,0 Km
Negozi Negozi
PeekaBoo
1,2 Km
Bar Bar
Bar
430 m
Life cafè
600 m
La Dolceria
1,1 Km
Jolly
1,1 Km
Baccara Disco
1,5 Km
Ristoranti Ristoranti
Star
570 m
Roccà
990 m
Baraka cucina e cantina
1,1 Km
Amici Miei
1,1 Km
Osteria del Teatro
1,1 Km
Mostra tutto

Caratteristiche

Rif.:
61111277
Piano:
Basso di 2
Totale piani:
2
Box:
2
Posti auto:
5
Balconi:
1
Mostra tutto
Prezzo Prezzo
€ 256.000
Rata mutuo Rata mutuo
€ 1.221 / mese
Spese annue Spese annue
€ 0
Proponi il tuo prezzoProponi il tuo prezzo
Immobile valutato con T·Valuta

Classe Energetica

G
G
G
G
G
G
G
G
G
EP invernale del fabbricato:
EP estiva del fabbricato:
Anno di costruzione:
1960
Riscaldamento:
Autonomo
Tipo impianto:
A radiatori
Tipo alimentazione:
Metano

Prezzo ridotto di €1 (11%%)

Ti interessa visionare l'immobile?

Fissa un appuntamento  Fissa un appuntamento

Richiedi informazioni

Clicca su Leggi per aprire l'informativa
* Questi campi sono obbligatori

Calcola il tuo mutuo

Semplice e senza impegno
Anticipo

( % )
Mutuo

( % )

pochi semplici passi

inserisci i tuoi dati
Questionario completato
Grazie per aver richiesto un appuntamento senza impegno con un nostro Consulente del Credito e Assicurativo.

Hai inserito correttamente tutti i dati necessari e a breve riceverai una e-mail con un link da convalidare per inviare i tuoi dati.
Affiliato
Studio Baracca Srlu
Via Matteotti, 4 48022 Lugo (RA)

Il nostro staff


  • Alessandro Tenedios
    Affiliato

  • Matteo Bini
    Collaboratore

  • Simona Gavelli
    Collaboratrice

  • Davide Brunori
    Collaboratore
Via Matteotti, 4 48022 Lugo (RA)
Zona: Lugo-Bizzuno-Belricetto-San Bernardino-San Potito-Voltana
Mostra su mappa
Orari: lunedì-mercoledì-venerdì 09.00-13.30 e 14.00-19.30; martedì e giovedì 09.00-13.00 e 15.00-19.30; sabato 09.00-13.00; sabato pomeriggio su appuntamento.
Affiliato
Studio Baracca Srlu
Via Matteotti, 4 48022 Lugo (RA)

2026 Tecnocasa Franchising S.p.A. - P. IVA 08365160152 - Via Monte Bianco 60/A 20089 Rozzano (MI). Ogni agenzia ha un proprio titolare ed è autonoma. Privacy policy | Policy utilizzo | Cookie policy